Tychy, Stare Tychy

Dom na sprzedaż

Opis nieruchomości

Nowe domy
Lokalizacja pomiędzy Starymi Tychami a os. E przy ul. Brzozy.
Stan surowy zamknięty
Szereg - dostępny segment skrajny i środkowy

Sprzedaż stan surowy zamknięty:
Dom 2 - 699.000zł (środkowy)
Dom 3 - 770.000zł (skrajny)

Segment środkowy pow działki ok 140mkw, segment skrajny ok 215mkw.

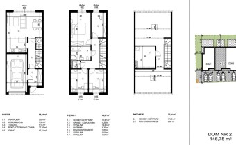
Dom posiada 3 poziomy:
PARTER: Przedsionek , garaż,  WC, salon z jadalnią
PIĘTRO: 4 pokoje, łazienka, pom. gospodarcze
PODDASZE(ok 27 mkw): pom. gospodarcze i otwarta przestrzeń

Budynki postawione na płycie fundamentowej
Murowane metodą tradycyjną z pustaka ceramicznego (ścianki działowe pustak/ytong)
Elewacja- Styropian 20cm z pokryciem w kolorach biały/antracyt
Okna trzyszybowe w kolorach: z zewnątrz antracyt, w środku białe (możliwa dopłata do koloru z obu stron)
Drzwi zewnętrzne antywłamaniowe, brama garażowa.
Rolety zewnętrzne sterowane elektrycznie.
Wykonane wszystkie przyłącza mediów do budynku/domu (prąd, woda, kanalizacja)
Dach : Dachówka ceramiczna
Stropy i schody pomiędzy poziomami wylewane
Możliwość własnej aranżacji pierwszego piętra (przebudowa ścianek i układu względem projektu)
Zabudowa ściankami powierzchni "strychowej" według własnego uznania (dodatkowy pokój/łazienka, tylko gospodarczy etc)
Wykonane podjazdy i tarasy.
Sprzedaż na etapie stanu surowego zamkniętego szacowany na I kwartał 2026r
 

Nota prawna

Opis oferty zawarty na stronie internetowej sporządzany jest na podstawie oględzin nieruchomości oraz informacji uzyskanych od właściciela, może podlegać aktualizacji i nie stanowi oferty określonej w art. 66 i następnych K.C.

Szczegóły oferty

Symbol oferty LDR-DS-4795
Powierzchnia 146,00 m²
Powierzchnia działki 140 m²
Liczba pokoi 5
Rodzaj domu segment
Garaż w budynku
Okna nowe PCV
Pokrycie dachu dachówka ceramiczna
Tarasy taras

Kalkulator kredytowy

PLN
%
Wysokość raty

Kalkulator kosztów

PLN
PLN
PLN
PLN
PLN
PLN
%
PLN
Podatek od czynności cywilno-prawnych
Taksa notarialna (opłata notarialna)
VAT od taksy notarialnej (opłaty notarialnej)
Wniosek do WKW
VAT od wniosku do WKW
Prowizja agencji nieruchomości
VAT od prowizji agencji nieruchomości
Wypisy aktu notarialnego - około
RAZEM (cena + opłaty)

Podobne oferty

dom na sprzedaż - Tychy, Zawiść

dom na sprzedaż

Tychy, Zawiść
4 pokoje 101,79 m2 7 515,47 zł/m2
dom na sprzedaż - Tychy, Zawiść

dom na sprzedaż

Tychy, Zawiść
3 pokoje 63,23 m2 9 631,50 zł/m2
dom na sprzedaż - Tychy, Zawiść

dom na sprzedaż

Tychy, Zawiść
4 pokoje 114,50 m2 7 502,18 zł/m2
bez prowizji
video
dom na sprzedaż - Tychy, Z-1

dom na sprzedaż

Tychy, Z-1
5 pokoi 100,87 m2 8 228,41 zł/m2

Napisz do nas

Proszę wypełnić to pole
Proszę wypełnić to pole
Proszę wypełnić to pole
Proszę wypełnić to pole
Trwa wysyłanie...

Ta strona wykorzystuje pliki cookies w celach statystycznych oraz w celu dostosowania naszych serwisów do indywidualnych potrzeb klientów. Zmiany ustawień dotyczących plików cookie można dokonać w dowolnej chwili modyfikując ustawienia przeglądarki. Korzystanie z tej strony bez zmian ustawień dotyczących cookies oznacza, że będą one zapisane w pamięci urządzenia.

rozumiem