tel/fax.(32)219-30-77
tel.(32)219-07-49
tel/fax.(32)219-91-56
tel.(32)219-91-28,
mail:biuro@lider.tychy.pl
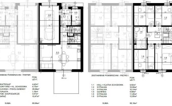
Oferujemy sprzedaż domu w stanie deweloperskim. Nieruchomość o powierzchni 114,56m2 z garażem. Dom w Tychach przy ul. Jaskrów 84 E/1 na działce o powierzchni 288 m2 .
Jednorodzinny dom w zabudowie bliźniaczej ze skośnym dachem. Segment oddzielony podwójnym murem i dylatacją.
Na parterze znajduję się wiatrołap z miejscem na szafę, duży salon z otwartą kuchnią, łazienka dla gości, obszerne pomieszczenie gospodarcze, garaż jednostanowiskowy. Na piętro prowadzą schody wylewane, które można pokryć dowolnym materiałem. Piętro posiada cztery niezależne sypialnie oraz dużą prywatną łazienkę.
Dodatkowym atutem, a zarazem powierzchnią do wykorzystania jest poddasze, które jest dość wysokie. Zapewni ono dużą przestrzeń do zagospodarowania wedle własnego uznania.
Dostępne media: woda, prąd (+siła), kanalizacja sanitarna, kanalizacja deszczowa . Na działce jest zbiornik z którego można wykorzystać wodę opadową. Brak gazu z przyczyn ekologicznych, przewidywane ogrzewanie za pomocą pompy ciepła. Dostępny światłowód internetowy.
Drogi prowadzące do osiedla należą do gminy i są pokryte asfaltem. Osiedlowe drogi wewnętrzne wykończone w kostce brukowej.
Ściany budynku zbudowane z pustaka ceramicznego z zewnątrz ocieplone styropianem 20 cm. . Dom oddzielony podwójnym murem z dylatacją i styropianem. Ściany zewnętrze domu wykończone oraz otynkowane w kolorach szaro-antracytowych. Dach skośny pokryty dachówka ceramiczną koloru antracytowego. Rynny z tworzywa posiadające osadnik rynnowy. Zapewniamy ciepły montaż okien co zapewnia szczelność i znaczne obniżenie kosztów ogrzewania. Okna PCV, trzyszybowe, od wewnątrz białe, z zewnątrz antracytowe. Wszystkie okna na piętrze i parterze wraz z dużym tarasowym posiadają elektryczne rolety zewnętrzne, schowane w elewacji. Zamontowane parapety zewnętrzne zamontowane na styrodurze (XPS) – ciepły montaż. Zostały także wygłuszone, co daje większy komfort podczas opadów. Eleganckie drzwi wejściowe z nowoczesnym długim pochwytem, szklone typu lustro weneckie. Brama garażowa koloru antracytowego, z możliwością automatycznego otwierana na pilot lub manualnie na klucz.
Stan deweloperski: rozprowadzenie medii: woda, prąd, kanalizacja. Ogrzewanie podłogowe na parterze i piętrzę. Na podłogach wylewki, na ścianach tynk maszynowy - gipsowy. Sufit na piętrze z płyt kartonowo gipsowych. Podłoga strychu wyłożona płytami osb. Dodatkowo opuszczane schody na strych. W garażu ocieplony sufit + silnik do bramy garażowej.
Zagospodarowanie terenu: wybrukowane drogi osiedlowe, podjazd do garażu z kostki brukowej, prywatna działka wyrównana i ogrodzona siatką panelową koloru antracytowego,.
Świetna lokalizacja z dała od głównych dróg, cisza i spokój blisko centrum miasta ale posiadająca doskonałe połączenie do głównych dróg: Katowice-Bielsko, Mikołów-Oświęcim.
Polecam i zapraszam umówić się na oględziny.
Kupujący zwolniony z płacenia podatku PCC(2%).
Powyższa oferta ma charakter informacyjny i nie stanowi oferty handlowej w rozumieniu art. 66 §1 Kodeksu Cywilnego.



